[Reinstatement] Fábrica de papel convertida en loft de diseño rústico

Una antigua fábrica de papel reconvertida en un loft contemporáneo con un presupuesto de apenas 100.000€. La residencia se encuentra en Anduze, una pequeña ciudad en la región de Gard, en el sur de Francia. La tipología tradicional de la región de Gard, en donde se ubica el proyecto, es la típica casa de campo provenzal. Por lo tanto, el nuevo proyecto refleja esta herencia, al tiempo que responde a las necesidades de la vida contemporánea de los habitantes. El diseño rústico es realmente encantador, con madera que se emplea en casi todo como material principal. Cuenta con un altillo o entresuelo que da al gran salón con ventanal, los puntos focales de la vivienda. Una paleta de color desgastado con tonos empolvados oscuros y un diseño ecléctico le aportan estilo singular a un espacio a dos aguas como este.

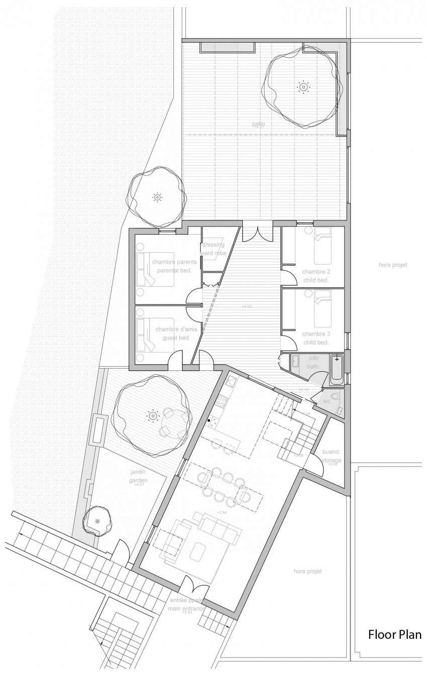
 En el exterior, hay un patio semi-cubierto y un jardín que fue rediseñado en el estilo de los jardines mediterráneos. Una fuente de agua se descubrió durante la construcción, lo que permitió tener una fuente, añadiendo así el elemento de frescor para disfrutar de los hermosos días que ofrece este entorno idílico.

 ¿os ha gustado este espacio? 
 
¡Feliz fin de semana a todos!
 

Fotografïas []  Planet Studio

VirlovaStyle


TWITTER / FACEBOOK / BLOGLOVIN / PINTEREST / INSTAGRAM

Más sobre Virginia

Soy Virginia, Arquitecta de Interiores. Me dedico a crear ambientes a la medida de cada estilo de vida. Ecléctica por natura, tengo alma "vintage".

Deja un comentario

Tu dirección de correo electrónico no será publicada. Los campos obligatorios están marcados con *

Este sitio usa Akismet para reducir el spam. Aprende cómo se procesan los datos de tus comentarios.