[Mis trabajos] Tienda de moda «Le Coquette»: PROYECTANDO! BEFORE
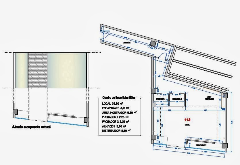
Hoy quiero acercaros uno de [Mis Trabajos], un proyecto precioso de una tienda que era el sueño de Eva. Emprendedora y encantadora, esta catalana afincada en Toledo por amor, contacta conmigo gracias a mi compañera interiorista Kat Ibánez, El jardín de los muffins, ¡Gracias Kat, fué un dulce!. Con las ideas muy claras y un concepto de tienda de moda femenina y romántica, conectamos desde el principio y el trabajo fue todo rodado. La tienda de moda iba a emplazarse en el Centro Comercial Luz del Tajo de Toledo. Partí de una planta irregular, que había sido una tienda de moda masculina, de escasos metros cuadrados pero con mucha altura de techos y con las instalaciones de luz y techos completamente aprovechables.
La idea era hacer algo en estilo vintage romántico pero sin sobrepasar un presupuesto. Con un programa de necesidades concreto: espacio de exposición y almacenamiento, área de mostrador, 2 probadores y área de almacén, el espacio debía ser abierto, luminoso y lleno de color.
Eva no tenía muy claro cómo llamar al local, ni la idea del logotipo ni el isotipo que representaría su firma con lo cual, le hice unas propuestas de imagen corporativa mientras decidíamos la propuesta de distribución que mejor funcionara.
El proceso creativo estaba completamente activo y funcionando con rapidez, y tras aceptar el diseño del nombre, la imagen y los colores, se desarrollaron las propuestas de distribución interior que, dentro de un presupuesto low cost, permitiera crear una ambientación con estilo, donde las prendas y complementos fueran los protagonistas.
Y el resultado no se hizo esperar, en menos de 3 semanas estaba todo decidido y aprobado.
¿qué os parece? en el siguiente post nos metemos de lleno en la obra!!
¿¡Feliz fin de semana!!
Fotografías y 3D [] Virginia López (Virlova Style)
Tienda Le Coquette ( CC. Luz del Tajo )













Miss A
31/01/2014Es súper chula!!!
y el logo me encanta 🙂
Trabajazo!!!
Estoy deseando ver más, uy deseando más aún un día de amigas en Toledo y ver la tienda 🙂
Vamos??
MUACKSSS
A
Olga (DracDecor)
31/01/2014Tiene buena pinta… publicarás las fotografías con el resultado final? espero que si…
DECO
31/01/2014Buen trabajo Virginia y muy bien documentado, plantas, alzado, sección, perspectivas…., mucho trabajo. Que valla bien la obra!!
Un abrazo.