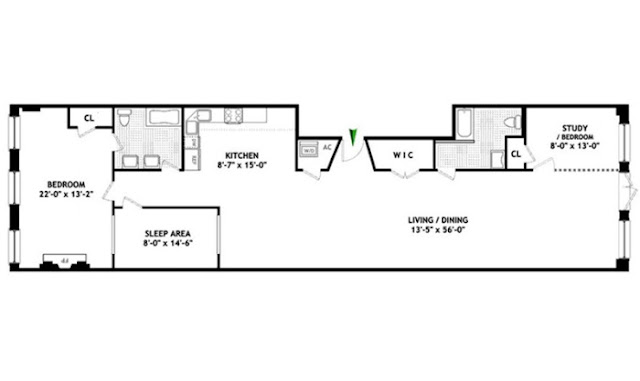
Un estupendo «pisito» de soltero en pleno SoHo newyorkino a modo de apartamento loft de planta abierta con dos dormitorios y dos cuartos de baño en mármol blanco. El espacio en forma rectangular se distribuye a lo largo de las paredes para no crear divisiones ni estancias que eviten la entrada y propagación de la luz de los ventanales situados en ambos extremos de la planta. Una de las habitaciones interiores, marcada ‘lugar para dormir’ en el plano de planta, no tiene una ventana al exterior o un armario así que no es un dormitorio en sí, sino una espacie de oficina estudio abierto en la parte delantera de la vivienda. El apartamento se encuentra en un edificio de 1915 que sigue manteniendo su encanto original a través de los solados de madera y una gran chimenea en el dormitorio. La decoración es una mezcla de estilo masculino urbano y con detalles clásicos y vintage.





El loft se sitúa en el segundo piso del edificio de hierro fundido con vistas a Crosby Street. El interior cuenta con techos de 4 metros de altura, suelos de madera originales, ladrillo visto en paredes y chimenea antigua recuperada, aunque ha sido renovado para incluir accesorios y servicios modernos, manteniendo su carácter. Destacan las pintorescas y sorprendentes vistas despejadas a través de sus enormes ventanales. La línea de cocina destaca por ser moderna y llena de estilo con herrajes de bronce. La propiedad está configurada como una enorme suite de lujo de un dormitorio y segundo espacio interior.
¡Feliz día a todos!
Fotografïas [] vía
VirlovaStyle